The Circulation of Models in the Construction of Christian Identity in the Northwest Iberian Peninsula: Architecture and Hagiotoponymy in the Braga Region[1] (pdf)
(*En Portugués aquí; En Español aquí; En français ici)
Abstract:
In this essay, I will illustrate how the presence of differing architectural models for Christian buildings in Braga, throughout the fifth to seventh centuries, suggest the existence of diverse influences and, consequently, the means by which information circulated. I will do this through an archaeological analysis of several architectural models including: the fifth-century church of Santa Marta das Cortiças (Falperra), the sixth-century basilica of São Martinho (Dume), and the seventh-century mausoleum of São Frutuoso (Real). These sites reveal influences from the Adriatic via Continental routes (e.g. Ravenna, Milan and Tours) and through the sea (via the southern Italian Peninsula and North Africa). By such analysis of the material evidence, supplemented by important recent archaeological research, I am able to propose a counter-thesis to that of the traditional historiography, namely, that: the fifth through seventh centuries were, in the Northwest Iberian Peninsula, a period of continuous constructive labor and social vitality, especially driven by the Church, in which can be detected external influences, endogenous inertia and creative autonomy.
I will, moreover, discuss the apparent correlation between the ‘paths’ of such architectural models and the diffusion of the cult of relics. Through a hagiotoponymic engagement with the written sources, I examine the origins and possible evolution of patron saints in the ancient landscape of Christian Braga and ask whether one could explain the predominance of Eastern holy martyrs in the Iberian Peninsula by the direct or indirect archaeological contacts with the East?
Essay
Architecture
The fifth through seventh centuries were, in western Europe, a period of great constructive activity, as seen through the edification of thousands of Christian sites by bishops, clergy, lay patrons and Christian communities. This is what happened also at Bracara Augusta (modern Braga), a place with three Christian cult buildings built in these centuries: Santa da Falperra, São Martinho de Dume, and São Frutuoso.
Santa Marta da Falperra
The Falperra archeological site is located 3 km (1.86 miles) south of the city of Braga, at the Santa Marta hill top, dominating the city’s landscape and the valley passage between the Ave and Cávado rivers. On this site was built an elaborate building which seems to replicate, on a smaller scale, the palatial model of Reccopolis.[2] Preserved at a higher level is a large building that measures 25 x 16 meters (82.02 x 52.49 feet), constructed of masonry composed of regular granite blocks. This is interpreted as a Christian temple, with three naves and an inscribed tripartite headboard, and a central semicircular apse flanked by two rectangular compartments (fig. 1). The materials collected in the excavations for this site, namely a late Corinthian-style capital and a glass cup with a Chi-Rho symbol, suggest a chronology of around the fifth to sixth centuries. The site represents a church model with a clear basilical affiliation from a North African and Italian tradition. Its association to a palace reveals, beyond the existence of a powerful aristocracy outside the city, perhaps also appropriation of religious architecture by secular power as a reinforcement of the relation between the aristocracy and the church.
São Martinho de Dume
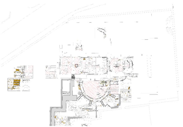
In the mid-sixth century, at Dume, next to the urbsand near the road from Bracara Augusta to Lucus Augusti, between the saltus and the ager, the Suevic King Chararic (r. 550-558/559) built a basilica devoted to Martin of Tours (earlier 300s to 397); it was built over an ancient Roman villa that had been turned into a monastery. The remains of the Suevic basilica extend from the churchyard to what is now the Dume parochial church basement, covering an area greater than 750 m2 (8,072 sq. feet). Still preserved are the façade, the nave, the cloister and the headboard which allow scholars to generate a general idea of the primitive temple (fig. 2).
Built with powerful granite walls, the headboard with stonemasonry and the nave with masonry, the building draws a cross floor plan oriented west-east, trefoil headboard and only one nave. This great building, measuring about 33 meters (108.27 feet) long and 21 meters (68.90 feet) at maximum width, presents a well-established division of internal space: a rectangular nave with a passage to the cloister with three arcs supported above by four pairs of columns that create an iconostasis of three portholes; a cloister that would be elevated in a crossing which would be prolongated sideways by a dual-semicircular apse forming a kind of transept, the inner walls being rhythmic with a theory of attached columns; a main chapel, also built in a semicircular fashion, was higher, accessed by three steps and was interiorly rhythmic by attached columns.
From the perspective of the organization of liturgical space, the three areas (nave, cloister or bema and apse) demonstrate all the complexity of the period’s Suevic liturgy. They corresponded to a cult in which the space was segregated, with the presbytery reserved to clergy and the nave to the congregation, pointing to a Christian liturgical tradition that originated in the eastern Mediterranean and was likely Byzantine.
The planimetric solution revealed by the Dume basilica is evident in the model of Eastern churches, which, from the sixth century onwards, was spread throughout western Europe. The early arrival of this model in the region of Braga seems to have resulted from a diffusion that came from Italian regions like Milan and Ravenna, that could have arrived by the Mediterranean or by a Continental route through the Merovingian kingdom.[3]
The church’s size and constructive quality may be explained by the fact that it was a royal initiative. The architectonic magnitude, moreover, demonstrates both the power of the Suevic kingdom and the effectiveness of the Suevic king and people to imitate a ‘Byzantine-style’ Christianity in the Northwest Iberian Peninsula.
São Frutuoso
In about 660, Fructuosus (c. 600-665), the bishop of Braga, ordered the construction of a mausoleum to house his tomb next to a monastery dedicated to Saint Fructuosus (d. 259). This mausoleum of São Frutuoso was built near Dume, crowning a little hill called Montélios. With no more than 13 meters (42.65 feet) in each axis, built over a solid granite stonework horizontally and regularly displayed, the mausoleum presents a cross plan of equals arms: one straight, with a barrel vault and oriented with the sunset, and three others covered by horseshoe arch apses and varied coverage. At the center rises a crossing topped off with a brick dome (fig. 3).
The inside of the mausoleum reveals elaborated architectonical solutions, from apses and central arcs with tripartite tympanums with a horseshoe arc over columns and impost pairs made of granite, limestone and marble, all decorated with acanthus leaves, in a late Corinth style and with a profusion of cementation of columns at the apses’ interior. These illustrate, furthermore, the structuration of a grand, formal and complex ceiling marked by a vault of limestone frieze decorated with Fleurs-de-lis laid out in semicircle.
Recent archeological excavations (still unfinished) prove the monument to have a Visigothic foundation corresponding to the mausoleum ordered by Saint Fructuosus. Its design suggests that it was intended as a reproduction of a model inspired by the mausoleum of Galla Placidia at Ravenna – a cross planimetry of equal arms, with quadrangular apsed roofs in barrel vault style and a crossing with a semispherical dome. As such, the mausoleum of São Frutuoso is an interesting example of architectural construction used as a representation of social power. In fact, by ordering the construction of the mausoleum during his lifetime, apparently contradicting the conciliar canons, Fructuosus intended to confirm not only his own distinct social status, a Visigothic descendant, but also the power of Braga’s Church.
Christian Hagiotoponymy in the Landscape of Braga
Between c. 550-650, the Mediterranean Basin was the stage for a broad and systematic building program, as manifested with the edification of thousands of Christian temples by bishops, clergy, monks, lay patrons and Christian communities.[4] This activity included the diffusion and/or development of the cult of saints and their relics. This effort was promoted by bishops, a group that would be inserted in the cult – frequently becoming saints themselves, as seen in many hagiographical texts (fig. 4).[5]
The Divisio Theodomiri cartography, or Suevi Parochial, a document written after 572, the date of the Second Council of Braga, provides a fair approximation of the settlement disposition in this period.[6] The text highlights the relatively uniform distribution of episcopal sees, ensuring an almost total regional coverage. However, it is on the urban periphery, punctuated by some small population clusters, basilicas and monasteries, articulated with some ancient Roman paths that leave Braga and that were kept in use until late Middle Ages, that the new Christian topography – which during the fifth-sixth centuries marked Braga’s regional landscape transformation – is seen.
Many places and Christian cult constructions show up on medieval documents from the ninth through eleventh centuries as “ancient.”[7] Symptomatically, the spatial distribution analysis of Christian temples and patron saints shows a significant superposition with places of archeologically confirmed occupation from the Suevic-Visigothic period. This revelation affirms this as a core moment in the Christianization of Braga’s landscape.[8]
This chronology fits, likewise, with the diffusion of the cult of saints, as noted above, and which is closely related with the cult of relics, apostles and martyrs. This is evident at Braga, by a letter from Pope Vigilius (p. 537-555) to Braga’s Bishop Profuturo II (b. 538-550), from 538, that expressly asks for the relics of the holy apostles and martyrs.[9] In 417, the presbyter Avitus of Braga (5thcentury) had delivered the relic of Saint Stephen (5-34), which he had brought from Jerusalem, to his compatriot Paulus Orosius (375-418), with whom he had met at Minorca. In a letter to Balconius, bishop of Braga (417-456), he asked that they were both taken to Braga.[10]
Braga’s Christian landscape was predominated by holy martyrs from Eastern churches, many of whom were venerated exclusively in the Iberian Peninsula. This fact may be explained by the several direct and indirect contacts with the East, whether those made via Ostrogothic and Visigothic relationships with Byzantium, those made by Egeria, Avitus or Martin of Dume, by the actions of the monasteries influenced by Syrian models, or by the general conservation of long-distance commercial routes throughout the Mediterranean. These benefited from Justinian’sRenovatio Imperiiand by the expanded Byzantine presence in the far south of the Iberian Peninsula (fig. 5).[11]
Analysis
Ideas spread because there are contacts and connections. The social, political and economic relations generate the contexts, at any scale, and in any geography, in diverse ways, in which those contacts and connections occur. For Braga and the Northwest Iberian Peninsula, the archaeological and written sources provide evidence for the existence of important contacts and connections with the central and eastern Mediterranean during the fifth through seventh centuries. The beginning of the Suevic kingdom and the Church’s organization there, started by Martin of Dume, are two of the main expressions of the sociocultural vitality of the region. Braga was a central place in this process, having been the Roman provincial capital and episcopal see and later the Suevic capital.[12]
The articulation between political and religious power is especially manifested in the relationship between the Iberian Church and the Suevic and Visigothic monarchies. This reveals the convergence of the Suevic kingdom with the affirmation of Braga’s metropolitan status. This convergence was not disconnected from the territorial reorganization and strategy for the centralization of power developed by Martin, whose actions seem to have been oriented by a clear perception that religious unity was essential to the construction of a political unity.[13] The Suevic rulers dominated the political geography in which they lived, as shown by the frequent embassies sent to the Frankish courts, to Ravenna and to the imperial capital, Constantinople. It was in this context though, that, around the year 550, the Suevic kingdom converted to Catholicism by Chararic and with the arrival of Martin. This move to Catholic orthodoxy followed, it would seem, a papal-imperial model ‘imported’ from Byzantium and which aimed at the construction of a state system, assigning Martin the role of emissary to the Byzantine court of Justinian.[14]
The Byzantine influence is seen likewise in the respective Suevic and Visigothic monarchy’s mode of political performance, whether with their use of episcopal councils and courts,[15] or their architectonical models, as seen with the Saint Fructuoso mausoleum and the Dume basilica, whose spatial components allow for the mass liturgical ritual celebration in Byzantine fashion.[16]
Therefore, the interpretation of ‘decline’ in monumental building between the late Roman Empire and post-Roman periods needs to be revised or, at least, seen from a new perspective, in the sense that it is possible now to identify a change in the typology of the constructions.[17] During the sixth through seventh centuries, ecclesiastical elites and aristocracies invested in the edification of Christian cult places, many of which reveal the domain of complex technical building solutions, as needed by, for example, the domed roofs. In the case of Braga, it is possible to assert that the known remains from the Suevic-Visigothic period show, through their plans, a surprising update of architectonical models, with influences that came from the eastern Mediterranean, Italian Peninsula and North Africa (fig. 6).
The relations between the churches and monarchies in the Peninsula represent the desire for ideological unity by which it was intended to organize society. The innovations and continuities, materialized in religious edifices, express an ideological and aesthetic transition, with the elites using the construction of churches to promote the convergence between the Gallaecian-Roman and Suevic-Visigothic societies. In this moment, the bishops emerged as the protagonists in the employment of political power, acting as ideological mentors. Religious and political unity seems to be settled on the existence of these worldly, well-travelled yet local elites who, affirming their power and influence, accepted integration into a new power structure and establish alliances that sustained the innovative structure of ecclesiastical and civil territory (fig. 7).[18]
Conclusion
A common element to all of the Northwest Iberian Peninsula is the association with a Christian universe, as shown by many documental registers and the archeological remains. First assimilated by the Sueves and later by the Visigoths, Christianization was, surely, a mobilizing factor in Gallaecian-Roman society from the fifth through seventh centuries.[19] If it be accepted that Christianization constitutes one of the main criteria that defined the concept of globalization, as materialized between the fifth and seventh centuries via the Byzantine Empire, than it is possible to say that Braga and the northwestern Iberian Peninsula, actively participated in this process.[20]
In any case, I believe that I have made it clear that those contacts and connections with Byzantium may be seen through the prism of a Byzantine-inspired architecture and with the preference for the Eastern cult of saints. This is evident also by the maintenance of long-distance commerce, which is better understood within a general picture of social dynamics marked more by negotiation than by conflict and imposition, and which shows the capacity for local elites, ecclesiastics being simply the most prominent, to affirm this model.
List of Figures

Figure 1: General plan of the archaeological ruins of and proposed 3D reconstruction of Falperra (Santa Marta das Cortiças).


Figure 2: General plan of the archeological ruins and proposed 3D reconstruction of Dume (São Martinho).


Figure 3: General view and 3D reconstruction proposition of the mausoleum of São Frutuoso.

Figure 4: The Hagiotoponymy of Braga’s territory. Small caps represent the names that are present in all the sources. Bold letters represent names that appear in all Hispanic calendars but that do not appear in sources before the Islamic invasion. Italicized letters represent names on some Hispanic calendars. Normal letters represent names that are not on Hispanic calendars or on sources before the Islamic invasion. Cult origin: A-Africa, G-Gaul, H-Hispania, I-Italy, R-Rome and Un-Universal celebrations (adapted from Da Costa, O Bispo D. Pedro e a Organização da Arquidiocese de Braga, 469-471). The filled-in circles mark the places with associated archeological remains.

Figure 5: The geographical origins of Braga’s patron saints.

Figure 6: Origin of the architectonical models of Santa Marta da Falperra, São Martinho de Dume and São Frutuoso.

Figure 7: The routes of Eregia and Orosius.

Figure 8: The origins of Braga’s numismatic treasure, dated to the fifth through sixth centuries (adapted from Natalia Botica, Diego Machado, Maria Manuela Martins, Fernanda Magalhães and Jorge Ribeiro. “‘Casa da Bica’ coin hoard research framework: database infrastructure and knowledge extraction,” Unpublished presentation at the 24th Annual Meeting of the European Association of Archaeologistsin Barcelona, 2018).

Figure 9: The localization of the production centers of the Northwest Iberian Peninsula imports from the 5thto the 7thcenturies (adapted from Fernández Fernández, O comercio tardoantigo no Noroeste PeninsularandMartínez Peñín, Martins and Fontes, “The City of Braga and its territory through its Material Culture (5th-15th centuries)”).
NOTES
[1] This article has been translated from the original Portuguese by Eduardo Daflon. Daflon is a Ph.D. student in the Universidade Federal Fluminense’s Social History postgraduate program (PPGH-UFF) and a lecturer in the Faculdade São Bento’s Ancient and Medieval History and Religious Sciences postgraduate programs.
[2] Luís Fontes, “O reino Suevo e o papel da Igreja na organização do território,” in A História no Eixo Atlântico, ed. Xosé Manuel Souto González (Vigo: Eixo Atlântico do Noroeste Peninsular, 1999), 131-43; Manuel Luís Real, “Portugal: cultura visigoda e cultura moçárabe,” in Visigodos y Omeyas: Un debate entre la Antigüedad Tardía y la Alta Edad Media (Madrid: C.S.I.C., 2000), 26-28.
[3] Richard Krautheimer, Early Christian and Byzantine Architecture (New Haven: Yale University Press, 1992).
[4] Nicholas Patricios, The Sacred Architecture of Byzantium: Art, Liturgy and Symbolism in Early Christian Churches (London: I.B. Tauris, 2014), 48.
[5] In 17-18% of them during the fourth through fifth centuries, 30% during the sixth century and 44% during the seventh century (Ann Marie Yasin, Saints and Church Spaces in the Late Antique Mediterranean: Architecture, Cult and Community [Cambridge: Cambridge University Press, 2012], 290).
[6] Documents 10-11 of the liber Fidei, in Liber Fidei Sanctae Bracarensis Ecclesiae, Vol. I, ed. Avelino de Jesus da Costa and José Marques (Braga: Archdiocese of Braga: 2016), 49-58.
[7] See the Liber Fidei Sanctae Bracarensis Ecclesiae.
[8] Luís Fontes, “Entre pagãos e cristãos: a sacralização da paisagem bracarense na Antiguidade Tardia,” in Espaços do Sagrado na Cidade Antiga, ed. Gilvan Ventura da Silva, Érica Cristhyane Morais da Silva and Belchior Lima Neto (Vitória: Editora Gm, 2017), 241.
[9] Avelino de Jesus Da Costa, O Bispo D. Pedro e a Organização da Arquidiocese de Braga, vol. 1, 2ndedn. (Braga: Irmandade de São Bento da Porta Aberta, 1997), 502.
[10] Da Costa, O Bispo D. Pedro e a Organização da Arquidiocese de Braga, 478.
[11] See Jamie Vizcaíno Sánchez, La presencia bizantina en Hispania (siglos VI-VII):la documentación arqueológica(Murcia: Universidad de Murcia: 2009). The ‘Byzantine influence’ on architecture and the cult of saints is evident, furthermore, in the products imported from eastern Mediterranean production centers and the continuing connections between Europe, the eastern Atlantic and the eastern Mediterranean, as witness, for example, in the archeological registers of a treasure found at Braga (Natalia Botica, Diego Machado, Maria Manuela Martins, Fernanda Magalhães and Jorge Ribeiro, “‘Casa da Bica’ coin hoard research framework: database infrastructure and knowledge extraction,” Unpublished presentation at the 24th Annual Meeting of the European Association of Archaeologists in Barcelona, 2018) or by the pottery containers that are seen in many northwestern Iberian archeological sites (Adolfo Fernández Fernández, O comercio tardoantigo no Noroeste Peninsular: unha análise da gallaecia sueva e visigoda a través do rexistro arqueolóxico [A Coruña: Editorial Toxosoutos, 2013]; Raquel Martínez Peñín, Manuela Martins and Luís Fontes, “The City of Braga and its Territory through its Material Culture (5th-15th centuries),” in Medieval Territories, ed. Flocel Sabaté and Jesús Brufal [Newcastle upon Tyne: Cambridge Scholars Publishing, 2018], 68-86). See also Figures 8 and 9 below.
[12] Luís Fontes, “O Período Suévico e Visigótico e o Papel da Igreja na Organização do Território,” in Minho. Traços de Identidade, ed. Paulo Pereira (Braga: Conselho Cultural da Universidade do Minho, 2009), 272-95.
[13] Leila Rodrigues Da Silva, Monarquia e Igreja na Galiza na segunda metade do século VI: O modelo de monarca nas obras de Martinho de Braga dedicadas ao rei suevo (Niterói: Editora da Universidade Federal Fluminense, 2008), 72.
[14] José Manuel Sánchez Chouza, “A Gallaecia sueva,”Compostellanum: Sección de Ciencias Eclesiásticas 62 (2017): 105-06.
[15] See the discussion of John of Biclar in Pablo Díaz, El reino suevo (411-585) (Madrid: Akal, 2011), 141.
[16] This ritual was deeply solemn and full of pomp, as evidenced by the king’s visit to Dume described in the De Miraculis Sancti Martini 4.7 (PL 71, 993-994). See also Patricios, The Sacred Architecture of Byzantium.
[17] For the theory of decline see Javier Martínez Jiménez, Isaac Sastre de Diego and Carlos Tejerizo García, The Iberian Peninsula between 300 and 850: An Archaeological Perspective. Amsterdam: Amsterdam University Press, 2018.
[18] Díaz, El reino suevo.
[19] Fontes, “O Período Suévico e Visigótico e o Papel da Igreja na Organização do Território,” 284.
[20] See Ken Dark, “Globalizing Late Antiquity: models, metaphors and the realities of long-distance trade and diplomacy,” in Incipient Globalization? Long-Distance Contacts in the Sixth Century, ed. Anthea L. Harris (Oxford: Archaeopress, 2007), 14.
Bibliography
Primary
Liber Fidei Sanctae Bracarensis Ecclesiae, Vol. I. Edited by Avelino de Jesus da Costa and José Marques. Braga: Arquidiocese de Braga, 2016.
Patrologiae cursus completus, sive biblioteca universalis, integra, uniformis, commoda, oeconomica, omnium SS. Patrum, doctorum scriptorumque ecclesiasticorum. Edited by Jacques-Paul Migne. Patrologia Latina 71 (1858).
Secondary
Botica, Natalia, Diego Machado, Maria Manuela Martins, Fernanda Magalhães and Jorge Ribeiro. “‘Casa da Bica’ coin hoard research framework: database infrastructure and knowledge extraction.” Unpublished presentation at the 24th Annual Meeting of the European Association of Archaeologistsin Barcelona, 2018.
Da Costa, Avelino de Jesus. O Bispo D. Pedro e a Organização da Arquidiocese de Braga. Volume 1. 2nd Edition. Braga: Irmandade de São Bento da Porta Aberta, 1997.
Dark, Ken. “Globalizing Late Antiquity: models, metaphors and the realities of long-distance trade and diplomacy.” In Incipient Globalization? Long-Distance Contacts in the Sixth Century, edited by Anthea L. Harris, 3-14. Oxford: Archaeopress, 2007.
Da Silva, Leila Rodrigues. Monarquia e Igreja na Galiza na segunda metade do século VI: O modelo de monarca nas obras de Martinho de Braga dedicadas ao rei suevo. Niterói: Editora da Universidade Federal Fluminense, 2008.
Díaz, Pablo. El reino suevo (411-585). Madrid: Akal, 2011.
Drauschke, Jörg. “‘Byzantine’ and ‘oriental’ imports in the Merovingian Empire from the second half of the fifth to the beginnings of the eighth century.” In Incipient Globalization? Long-Distance Contacts in the Sixth Century, edited by Anthea L. Harris, 53-73. Oxford: Archaeopress, 2007.
Fernández Fernández, Adolfo. O comercio tardoantigo no Noroeste Peninsular: unha análise da gallaecia sueva e visigoda a través do rexistro arqueolóxico. A Coruña: Editorial Toxosoutos, 2013.
Fontes, Luís. “O reino Suevo e o papel da Igreja na organização do território.” In A História no Eixo Atlântico, edited by Xosé Manuel Souto González, 131-43. Vigo: Eixo Atlântico do Noroeste Peninsular, 1999.
Fontes, Luís. “A igreja sueva de São Martinho de Dume. Arquitetura cristã antiga de Braga e na Antiguidade Tardia do Noroeste de Portugal.” Revista de História da Arte, 6 (2008): 162-81.
Fontes, Luís. “O Período Suévico e Visigótico e o Papel da Igreja na Organização do Território.” In Minho. Traços de Identidade, edited by Paulo Pereira, 272-95. Braga: Conselho Cultural da Universidade do Minho, 2009.
Fontes, Luís. “Powers, Territories and Architecture in Northwest Portugal: An approach to the Christian landscapes of Braga between fifth and eleventh centuries.” In Churches and Social Power in Early Medieval Europe: Integrating Archaeological and Historical Approaches, 400-1100 AD, edited by José C. Sánchez-Pardo and Michael G. Shapland, 231-47. Turnhout: Brepols, 2015.
Fontes, Luís. “Entre pagãos e cristãos: a sacralização da paisagem bracarense na Antiguidade Tardia.” In Espaços do Sagrado na Cidade Antiga, edited by Gilvan Ventura da Silva, Érica Cristhyane Morais da Silva and Belchior Lima Neto, 226-44. Vitória: Editora Gm, 2017.
Krautheimer, Richard. Early Christian and Byzantine Architecture. New Haven: Yale University Press, 1992.
Martínez Jiménez, Javier, Isaac Sastre de Diego, and Carlos Tejerizo García. The Iberian Peninsula between 300 and 850: An Archaeological Perspective. Amsterdam: Amsterdam University Press, 2018.
Martínez Peñín, Raquel, Manuela Martins and Luís Fontes. “The City of Braga and its territory through its Material Culture (5th-15th centuries).” In Medieval Territories, edited by Flocel Sabaté and Jesús Brufal, 68-86. Newcastle upon Tyne: Cambridge Scholars Publishing, 2018.
Patricios, Nicholas. The Sacred Architecture of Byzantium: Art, Liturgy and Symbolism in Early Christian Churches. London: I.B. Tauris, 2014.
Real, Manuel Luís. “Portugal: cultura visigoda e cultura moçárabe.” In Visigodos y Omeyas: Un debate entre la Antigüedad Tardía y la Alta Edad Media, 26-28. Madrid: C.S.I.C., 2000.
Sánchez Chouza, José Manuel. “A Gallaecia sueva.”Compostellanum: Sección de Ciencias Eclesiásticas 62 (2017): 85-137.
Vizcaíno Sánchez, Jamie. La presencia bizantina en Hispania (siglos VI-VII): la documentación arqueológica. Murcia: Universidad de Murcia: 2009.
Yasin, Ann Marie. Saints and Church Spaces in the Late Antique Mediterranean: Architecture, Cult and Community. Cambridge: Cambridge University Press, 2012.
![]()